Lansdown Road, Redland

£825 per month

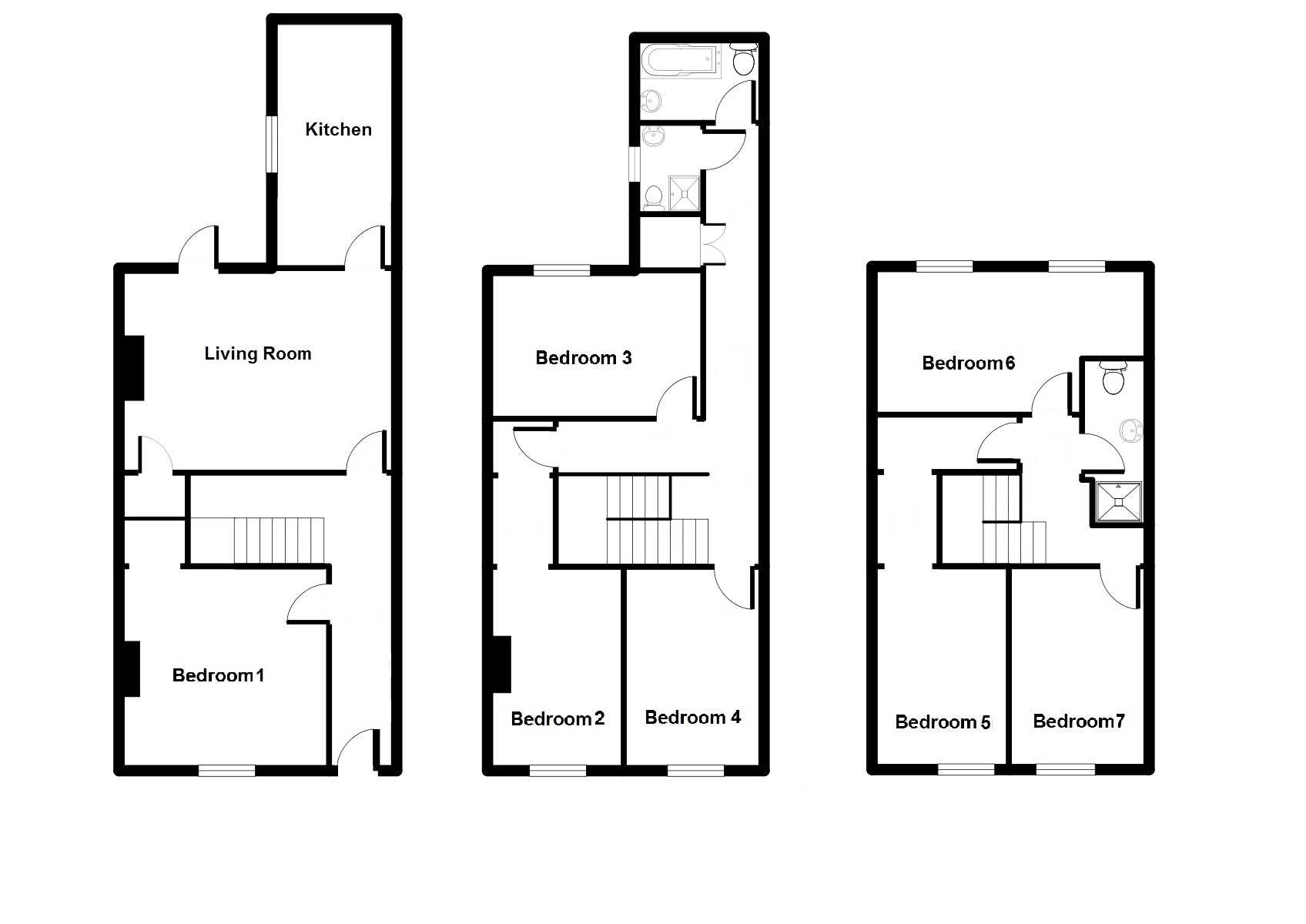
7 Bedrooms / 3 Bathrooms / 1 Reception

Available 15 July 2026

Furnished

Tenancy period minimum: 12 Months

Deposit £5775

Managed by landlord

  • Facebook  Twitter  Google +  Pinterest
  • STUDENT ACCOMMODATION AVAILABLE FOR ACADEMIC YEAR 2026
  • RENT £825.00 PER PERSON PER MONTH WITH GAS INCLUDED IN THE RENT

** Gas heating included **

RENT:
Quoted per calendar month (PCM) and is inclusive of a gas package but exclusive of all other utility bills and council tax

DESCRIPTION
This property is spread over 3 floors and is heated by gas central heating. It is let furnished and has a separate lounge, seven double bedrooms, 2 bathrooms and a separate WC. There is a rear garden and the kitchen is equipped with 2 * cooker, 2 * fridge/freezer, dishwasher, washing machine and tumble dryer.

COUNCIL TAX
Bristol City Council Tax Band D

LOCATION
Prime location for students! Situated in the heart of BS6, this property is just a short walk from the University of Bristol, popular student areas, and vibrant Gloucester Road with its diverse shops, cafes, and nightlife. Excellent public transport links make getting around the city easy, and nearby green spaces provide the perfect spots to relax. Ideal for students looking for convenience and a lively community atmosphere

PARKING
This property does not include dedicated parking. However, it is located within the Bristol City Council permit area, so residents can apply directly to the council for an on-street parking permit if needed.

SERVICES:
Mains Electricity. Mains Gas. Mains Water. Mains Sewage
Mobile signal/coverage - Likely/Limited - As per Ofcom
Broadband - Broadband

RESTRICTIONS:
No Smokers . This includes Vaping.
Non-lockable Bedrooms
Offered to full-time students only - Tenants must be able to comply with the student specific requirements introduced under the Renters' Right Act
All students and their Guarantors are subject to referencing via a 3rd Part reference company

VIEWINGS:
Strictly by accompanied appointment with the Agent

TENANCY:
Joint and several Assured Shorthold Tenancy. 12 months minimum
The Tenancy will be subject to the landlords right to serve a Section 4A notice under the Renters' Rights Act

HOLDING DEPOSIT:
The Holding deposit is equivalent to 1 weeks rent. To calculate the Hold Deposit the formula is - agreed Rent PCM * 12 then divided 52

Reference: INH1000114


Tenant Fees

Fee Structure
Tenant Permitted Fees
A refundable Holding Deposit of no more than one week’s rent
A holding Deposit is a payment made by a tenant to a landlord (or to an agent acting on the landlord’s behalf) to reserve that property
A refundable Tenancy Deposit
Up to 5 weeks rent per tenancy with Rent under £50,000.00 PA
Up to 6 weeks rent per tenancy with Rent of or over £50,000.00 PA
A Tenancy Deposit is money held by the landlord (or agent acting on the landlord’s behalf) as security during the period of the tenancy & reserved for any damages or defaults by the tenant. Tenancy Deposits are held in accordance with the Deposit protection scheme
Rent: Payment to a landlord for the use of the property
Payments in the event of a default: Landlords and letting agents may require a tenant to make a payment in the event of a default/Breach of Tenancy (e.g anti-social behaviour, damaged caused by Tenant, unpaid Rent, Lost Key). The amount charged cannot exceed the loss suffered by landlord or Agent
Unpaid Rent
If rent is outstanding more than 14 days, Interest at 3% above Bank of England Base Rate from Rent Due Date until paid in order to pursue non-payment of rent
Lost Keys or other Security Devices
Tenants are liable to the actual cost of replacing any lost key(s) or other security device(s).If the loss results in locks needing to be changed, the actual costs of a locksmith, new lock & replacement keys for the tenant, landlord any other persons requiring keys will be charged to the tenant
Charging to vary a tenancy
When a tenant has requested it, landlords & agents can charge to vary, assign or replace a tenancy. Such fees are capped at £50 unless the landlord can demonstrate that greater costs were incurred
Payment on termination of a tenancy: Agents & landlords can require a tenant to make a payment for an early termination of the tenancy agreement at the tenant’s request. The payment cannot exceed the loss suffered by the landlord or reasonable costs incurred by the letting agent
Payments for provision of utilities
Agents & landlords are permitted to charge tenants fees associated with utilities, such as electricity, gas or other fuel, water or sewerage, if this is clear in the tenancy agreement
Council Tax payments: Letting agents & landlords may require tenants to pay the Council Tax on the property they rent
Payments for television licence: A payment that a tenant is required to make to have a television licence is a permitted payment if the tenant is required by the tenancy agreement to make the payment
Communication services: Agents & landlords are permitted to charge tenants fees associated with communication services, such as telephone (other than a mobile) internet,cable/satellite television, if this is clear in the tenancy agreement
Landlord Fees : Property Management from 10% + VAT (Total 12%) of a Monthly Rental
Let Only Service for Sole Agency from 50% + VAT (Total 60%) of 1 months Rental (Minimum fee of £400.00 + VAT (Total £480.00)) & Joint Agency from 75% + VAT (Total 90%) of 1 months Rental Minimum fee of £600.00 + VAT (Total £720.00)
Contract Renewal or Part Change of Tenancy Service from 40% +VAT (Total 48%) of 1 months Rental (Minimum fee of £300.00 + VAT) (Total £360.00) Referencing Service from £35.00 + VAT (£42.00) per person


Disclaimer

These particulars are intended to give a fair description of the property but their accuracy cannot be guaranteed, and they do not constitute an offer of contract. Intending purchasers must rely on their own inspection of the property. None of the above appliances/services have been tested by ourselves. We recommend purchasers arrange for a qualified person to check all appliances/services before legal commitment.

Members